Beschreibung
# Objektbeschreibung
Diese gepflegte und helle 4-Zimmer-Wohnung befindet sich in der Wohnanlage Citypark Karlsruhe-Südstadt in ruhiger, barrierefreier Lage. Sie liegt im 3. Obergeschoss eines Mehrfamilienhauses aus dem Baujahr 2008 und ist über einen Aufzug erreichbar.
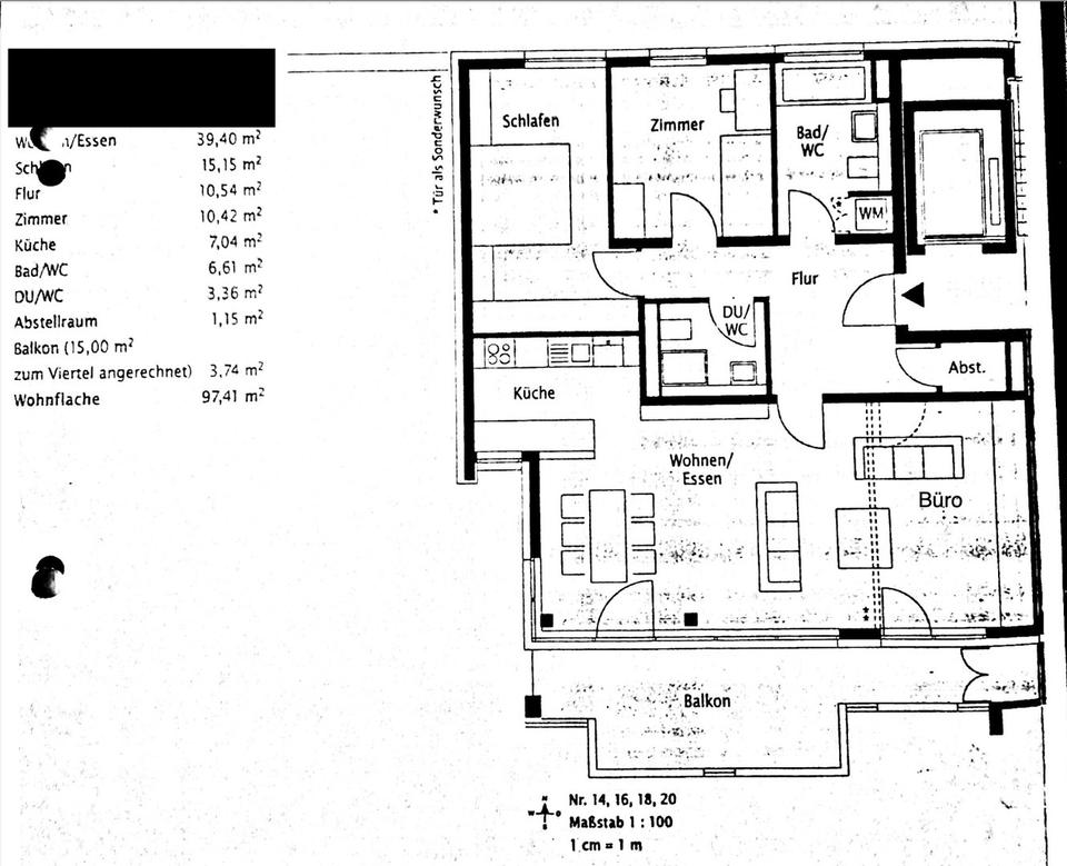
Die Wohnfläche beträgt ca. 97,41 m² und bietet eine funktionale Raumaufteilung. Die Wohnung eignet sich sowohl für Paare und Familien als auch für Kapitalanleger.
Der Wohn- und Essbereich ist großzügig geschnitten und verfügt über einen Zugang zum Süd-Balkon. Die Einbauküche ist im Kaufpreis enthalten. Drei weitere Zimmer stehen zur flexiblen Nutzung als Schlaf-, Kinder- oder Arbeitszimmer zur Verfügung.
Es sind zwei Badezimmer vorhanden: ein Tageslichtbad mit Badewanne und WC sowie ein weiteres Bad mit Dusche und WC.
Zur Ausstattung gehören Parkettböden, Fußbodenheizung sowie ein barrierefreier Zugang. Ein Tiefgaragenstellplatz ist im Kaufpreis enthalten. Zusätzlich stehen ein Kellerabteil, ein Fahrradkeller und ein gemeinschaftlicher Waschraum zur Verfügung.
Die Wohnanlage ist gepflegt und bietet eine gute Anbindung an Einkaufsmöglichkeiten, Kindergärten und den öffentlichen Nahverkehr.
# Ausstattung
Balkon, Keller, Fahrstuhl, Vollbad, Duschbad, Einbauküche, Gäste-WC, Barrierefrei, Parkett
Bemerkungen:
Großzügiger, heller Wohn-/Essbereich mit Zugang zum Süd-Balkon
Moderne Einbauküche im Kaufpreis enthalten
3 weitere Zimmer (flexibel nutzbar als Schlafzimmer, Kinderzimmer, Büro)
Zwei vollwertige Badezimmer:
1 großes Tageslichtbad mit Badewanne und WC
1 weiteres Bad mit Dusche und WC
Tiefgaragenstellplatz (inkludiert)
Kellerabteil, Fahrradkeller, Wäscheraum
Barrierefreier Zugang über Aufzug
Ruhiges, gepflegtes Wohnumfeld mit sehr guter Infrastruktur
Schnelles Internet (über Kabel, DSL und Glasfaser bis in die Wohnung, zuletzt 1Gbit)
Balkonkraftwerk für eigene Stromproduktion
# Weitere Angaben
Separate WCs: 1
Verfügbar ab: sofort
Objektzustand: gepflegt
Bodenbelag: Parkett
# Lagebeschreibung
Die Wohnung liegt in einer der beliebtesten Wohngegenden von Karlsruhe – ruhig und zentral zugleich. Einkaufsmöglichkeiten, ÖPNV, Schulen, Kindergärten und Parks sind fußläufig erreichbar. Die Südstadt überzeugt durch ihre gewachsene Infrastruktur und hohe Lebensqualität.
Infrastruktur (im Umkreis von 5 km):
Apotheke, Lebensmittel-Discount, Allgemeinmediziner, Kindergarten, Grundschule, Realschule, Gymnasium, Öffentliche Verkehrsmittel
# Sonstiges
Heizungsart: Fußbodenheizung
Energieträger: Fernwärme
Die Wohnung wird im Bieterverfahren angeboten.
Der angegebene Preis von 500.000 € stellt den Startpreis dar.
Bei Interesse laden wir Sie nach vorheriger Absprache zu einer Besichtigung ein. Im Anschluss können Sie ein schriftliches Kaufgebot abgeben.
Makleranfragen nicht erwünscht. Nach § 7 UWG sind unaufgeforderte Kontaktaufnahmen durch Makler ohne ausdrückliche Einwilligung des Empfängers verboten!
ohne-makler (OM) ist weder Anbieter noch Vermittler der Immobilie. OM betreibt eine Plattform für Immobilieneigentümer, die unter anderem die gleichzeitige Veröffentlichung einzelner Inserate auf mehreren Immobilienportalen ermöglicht. Die Inhalte dieser Inserate werden ausschließlich von Dritten verantwortet. Für die Richtigkeit, Vollständigkeit oder Rechtmäßigkeit der Angaben übernimmt OM keine Haftung. Hinweise auf mögliche Rechtsverstöße können jederzeit gemeldet werden und werden nach Prüfung umgehend bearbeitet.
# Energie
Energieausweis: Energieverbrauchsausweis
Energieverbrauch: 67 kWh/(m²*a)
Energieeffizienzklasse: B
Heizungsart: Fußbodenheizung
Wesentliche Energieträger: Fernwärme
Anbieter-Objekt-ID: 417437




















