Beschreibung
# Objektbeschreibung
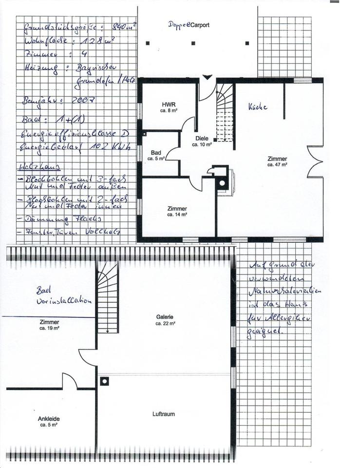
Das 2007 erbaute Blockbohlen-Holzhaus steht am Ende der Straße an einem Seitenarm der Havel in der wunderschönen Gemeinde Birkenwerder. Der unverbaute Blick zum Wasser, und nach hinten auf eine große Wiese, lassen dem Hausbesitzer ein Gefühl von Urlaub in der Natur erleben. Der idyllisch gelegene hauseigene Bade- und Angelsteg verstärkt noch einmal diesen Eindruck, im Einklang mit der Natur zu leben. Das 840m² große Grundstück mit einem zusätzlichen kleinen Bungalow bietet dem Käufer noch Möglichkeiten, um sich zu verwirklichen. Die Hochbeete, Wege und Stellflächen sind aus Naturstein gebaut. Ein hauseigener Gartenbrunnen ist ebenfalls vorhanden. Das Blockbohlenhaus wurde maßgeblich nach den Vorgaben von allergiefreiem Wohnen gebaut und innen mit Verwendung von schadstofffreien Naturmaterialien ausgestattet.
# Ausstattung
Garten, Vollbad, Einbauküche, Sonstiges (s. Text)
Bemerkungen:
Das Haus ist nach 18 Jahren in einem guten Zustand und sofort einzugsbereit. Jedoch besteht an einigen Stellen Sanierungs- und Reparaturbedarf. Die entsprechenden Kostenvoranschläge liegen als Kalkulationgrundlage vor. Das 2. Badezimmer im OG müsste ausgebaut werden, die Anschlüsse, sogar für eine Sauna, liegen an. Die Außenfassade müsste geölt werden.
# Weitere Angaben
Verfügbar ab: nach Absprache
Objektzustand: nach Vereinbarung
Grundstücksfläche: ca. 840 m²
# Lagebeschreibung
Die Anbindung an die öffentlichen Verkehrsmittel vom Wohnort betragen 2,3 km bis zur S-Bahnlinie S1, S8, Regionalbahn und 730 m bis zum Bus. Zur Autobahn A10 sind es mit dem Auto 1,4 km und die Bundesstraßen B96 und B96a führen durch den Ort in die Hauptstadt rein, sodass man hier von einer sehr guten Anbindung sprechen kann. Weiterhin ist die Nahversorgung im Umkreis von 2-3 km mit Einkaufsmöglichkeiten, Schulen und Kindergärten, Ärzten und Apotheken, Freizeitangeboten und Gastronomie in vollem Umfang gewährleistet.
Infrastruktur (im Umkreis von 5 km):
Apotheke, Lebensmittel-Discount, Allgemeinmediziner, Kindergarten, Grundschule, Gesamtschule, Öffentliche Verkehrsmittel
# Sonstiges
Heizungsart: Ofenheizung
Energieträger: Holz
ohne-makler (OM) ist weder Anbieter noch Vermittler der Immobilie. OM betreibt eine Plattform für Immobilieneigentümer, die unter anderem die gleichzeitige Veröffentlichung einzelner Inserate auf mehreren Immobilienportalen ermöglicht. Die Inhalte dieser Inserate werden ausschließlich von Dritten verantwortet. Für die Richtigkeit, Vollständigkeit oder Rechtmäßigkeit der Angaben übernimmt OM keine Haftung. Hinweise auf mögliche Rechtsverstöße können jederzeit gemeldet werden und werden nach Prüfung umgehend bearbeitet.
# Energie
Energieausweis: Energiebedarfsausweis
Endenergiebedarf: 102 kWh/(m²*a)
Energieeffizienzklasse: C
Heizungsart: Ofenheizung
Wesentliche Energieträger: Holz und Hackschnitzel
Anbieter-Objekt-ID: 351993


































