Beschreibung
# Objektbeschreibung
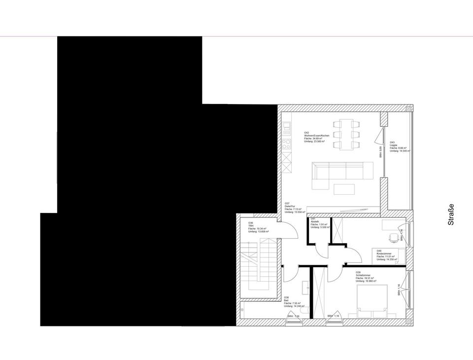
Zur Vermietung steht eine moderne Wohnung (Neubau) im 1. Obergeschoss eines gepflegten Mehrfamilienhauses in Butzbach OT Griedel. Der durchdachte Grundriss bietet ein angenehmes Wohngefühl mit klarer Raumaufteilung und viel Tageslicht.
Herzstück der Wohnung ist der großzügige Wohn-, Ess- und Küchenbereich mit ca. 35 m², der vielseitig möblierbar ist. Das Schlafzimmer mit ca. 16,50 m² bietet reichlich Platz für ein großes Bett, Kleiderschrank und zusätzliche Möbel. Ein Kinderzimmer mit ca. 11,00 qm steht ebenfalls zur Verfügung. Ergänzt wird das Raumangebot durch eine große Loggia mit 8,66 m² und einer praktischen Abstellkammer innerhalb der Wohnung.
# Ausstattung
Balkon, Garten, Keller, Duschbad, Fliesen
Bemerkungen:
Energiestandard: Effizienzhaus 40
Loggia ca. 8,66 m²
Duschbad (moderne Ausführung)
Großes Schlafzimmer ca. 16,51 m²
Wohn-/Ess-/Küchenbereich ca. 35 m²
(Hinweis: ohne Einbauküche – ideal für eigene Küchenplanung)
Abstellkammer innerhalb der Wohnung
Waschraum im Kellergeschoss mit Waschmaschinen- und Trocknerstellplatz
Separater Abstellraum im Kellergeschoss
Glasfaser-Internet (Telekom) verfügbar
# Weitere Angaben
Verfügbar ab: 01.02.2026
Objektzustand: Erstbezug
Bodenbelag: Fliesen, Kunststoff
# Lagebeschreibung
Die Wohnung befindet sich in Butzbach, Ortsteil Griedel, einer ruhigen und zugleich verkehrsgünstigen Wohnlage. Die direkte Anbindung an die A5 ( 1 Minute von Wohnung zur Autobahn) sowie die unmittelbare Nähe zur A45 ermöglicht schnelle Wege in Richtung Gießen, Friedberg, Frankfurt am Main und das gesamte Rhein-Main-Gebiet – ideal für Pendler.
Einkaufsmöglichkeiten, Ärzte, Apotheken sowie Schulen und Kindergärten befinden sich in Butzbach und sind je nach Ziel in kurzer Zeit erreichbar. Gleichzeitig bietet Griedel ein angenehmes, gewachsenes Wohnumfeld mit guter Mischung aus Ruhe und Nähe zur Stadt.
Infrastruktur (im Umkreis von 5 km):
Apotheke, Lebensmittel-Discount, Allgemeinmediziner, Kindergarten, Grundschule, Hauptschule, Realschule, Gymnasium, Gesamtschule, Öffentliche Verkehrsmittel
# Sonstiges
Heizungsart: Fußbodenheizung
Energieträger: Fernwärme
Makleranfragen nicht erwünscht. Nach § 7 UWG sind unaufgeforderte Kontaktaufnahmen durch Makler ohne ausdrückliche Einwilligung des Empfängers verboten!
ohne-makler (OM) ist weder Anbieter noch Vermittler der Immobilie. OM betreibt eine Plattform für Immobilieneigentümer, die unter anderem die gleichzeitige Veröffentlichung einzelner Inserate auf mehreren Immobilienportalen ermöglicht. Die Inhalte dieser Inserate werden ausschließlich von Dritten verantwortet. Für die Richtigkeit, Vollständigkeit oder Rechtmäßigkeit der Angaben übernimmt OM keine Haftung. Hinweise auf mögliche Rechtsverstöße können jederzeit gemeldet werden und werden nach Prüfung umgehend bearbeitet.
# Energie
Energieausweis: Energiebedarfsausweis
Endenergiebedarf: 50 kWh/(m²*a)
Energieeffizienzklasse: B
Baujahr: 2025
Heizungsart: Fußbodenheizung
Wesentliche Energieträger: Fernwärme
Anbieter-Objekt-ID: 419901







